
It’s spring!
Surely, many of you have been waiting for this moment, when the sun shines so brightly upon the multi-colored flowers in your front yard. Doesn’t it feel nice to enjoy an afternoon tea on your porch, taking in the beauty of such a warm day. But just when you’re about to take another sip, a buzz sounds right by your ear, and all you can do is close your eyes and hope it flies away into a primrose that you know it likes.
One of the biggest concerns in the field of biodiversity is the fact that bee populations have suffered a downfall a decade ago. Many organisations came out to raise awareness about this, and was able to increase the number of beekeepers worldwide.
Being a very biodiversed area right in Edinburgh, Union Canal has a relatively low number of apiaries that could have contributed in bee population restoration. As a way to encourage the residents along the canal to take part in bee rescue, a restaurant seems fit. HoneyPot does not only serve the honeybees, but all types of pollinators, while acting as a bridge that connects the realms of men and insects via the concept of consumption.
Human and insects are far more connected than realized. Through this restaurant, visitors can explore the delighted sight being the food source of bees in the garden area, and then slowly approach the restaurant. This is where they can taste the sweetness of honey, and, maybe, even experience the taste of flowers that bees love so much.
By having the restaurant explicitly serve bee products will benefit Union Canal greatly. The idea is to have all products provided by the local beekeepers. This will encourage the community to start beekeeping as a hobby or even part-time job and earn some extra income, along with building the pride of a local restaurant. Own by the local, provided by the local.
Although that may sound nice, but it has the risk of exploiting the bees. It is important to remember that bees are our friends and not our labors. Thus, sustainable beekeeping is the solution. On-site, HoneyPot have a number of beehives set up in the garden to start off the business. These bees are not to be overworked, but all honey are collected from the extra production. One hive can produce up to 60lb of honey per year, yet only need around 30lb to survive winter. In good summer years, there could be 25lb surplus honey on average, which will be for the people.

The site for HoneyPot sits on a currently abandoned pub, The Blue Goose, right across from Water of Leith Conservation Trust and Visitor Centre. This site was chosen fro its appealing location. It is where Water of Leith crosses with Union Canal. The front is facing a main road, Lanark Rd., with a bus stop in front, which allow easy access both by foot and public transportation. Slateford Station can also be found only 20 minutes away to the east. And most importantly, the area is rich with wild flowers and trees that are suitable for pollen foraging.

Upon arrival through honeysuckle wall gate, the visitors are greeted by the colorful flowers. Each selected carefully to be bee’s favourites, suit site conditions, and a blooming period that boosts aesthetics (as can be seen in the blooming chart above, in relation to site map). There is even a night blooming flower near the restaurant which opens late at night!

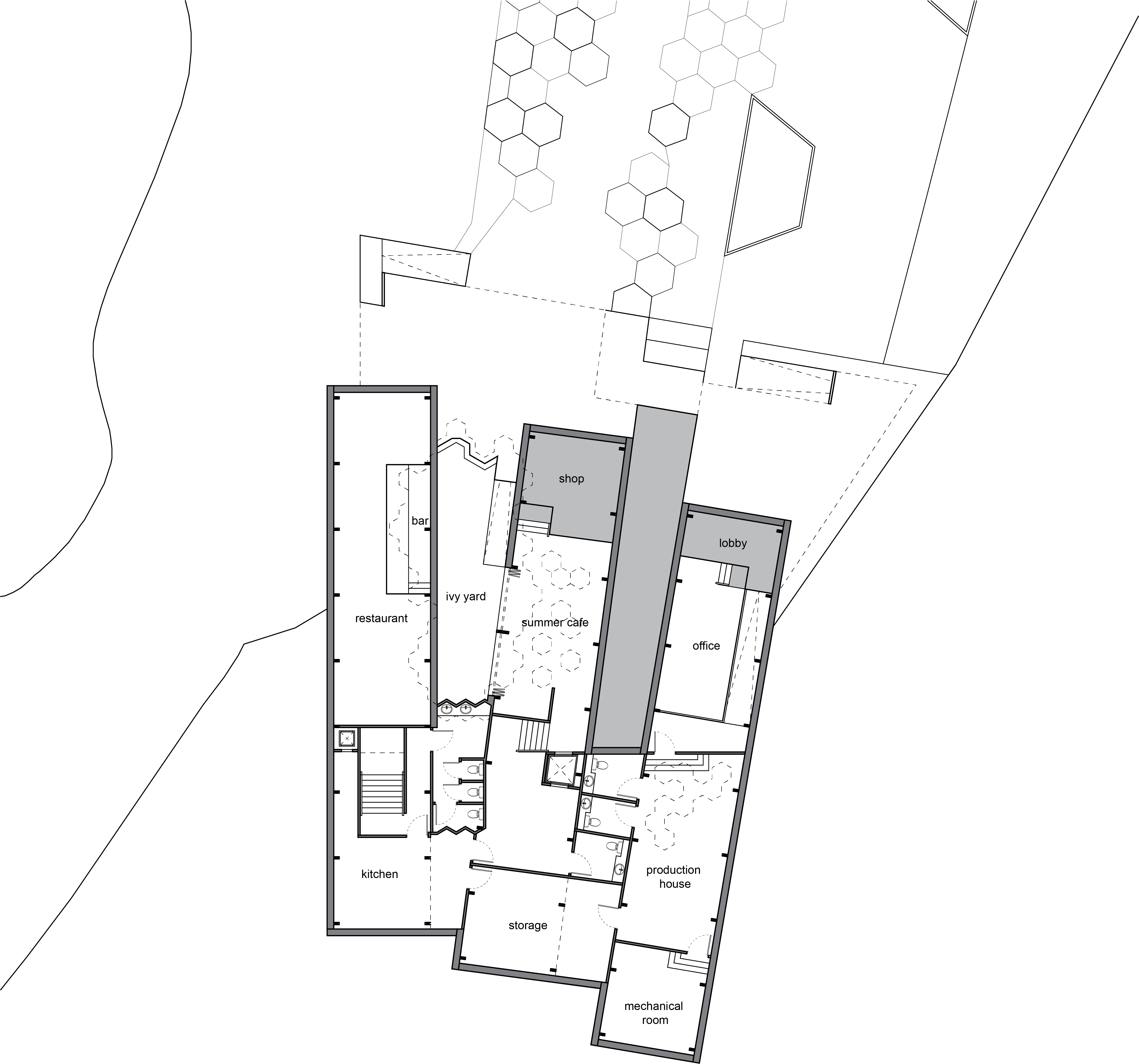
basement floor plan 
ground floor plan

The building structure is separated into three sections, all serving different purposes. The far west section, with best view to Water of Leith, is the restaurant, which is the most public. It is open year round at night time, for only dinner will be served due to limited local honey resource. The centre section operates as both a shop that opens year round and a cafe that only opens in the summer. The highlight of this cafe is that, on nice days, it can open into ivy yard that connects the two sections together. The east section, with quite limited view and mostly dug into the ground, is an office and production house. It is separated from the two sections by the pool and grand stairs that lead up to Water of Leith park, but holds its own deck for the workers to go out to relax and/or visit the bees.

Many surprises can be found in the whole site of HonePot.

The pool in the middle of the garden is designed to mimic Water of Leith next to the site, as well as the idea of a man made water body such as Union Canal itself. Because it is only ankle deep, visitors are encourage to walk into it and enjoy it in the hots of summer. Not only that, it also serve as a rainwater collection, where pipes are installed on the side of the pool and direct the water into a water take nearby. Water collected from the pool are used to flower the gardens.

The isolated gardens seen afar in the image above are suitable for visitors who seek quiet and relaxation. These small nooks are also good for education as they are made of pollinator walls. These walls are made up of mini slots that are filled with many different things such as small bamboo holes to house solitary bees, dried twigs for bird nests, or vegetation and small flowers for other types of insects and birds to feed on.

In a cool climate such as Edinburgh, cooling is not as much a problem as heating. The method of ground source heat pump, or geothermal, is chosen to heat the building. Since the site is next to a water body, it soil layers are prone to be muddy and wet. So instead, the heat is taken from tapping into the hill nearby, which is over 10 meter above grade, and over all of over 70 meter above sea level. The heat is delivered into the building as underfloor heating to be distributed evenly throughout the room. Natural ventilation are used for summer time by having operable windows on the west side, the direction of prevailing wind to receive fresh air. And another side, there are smaller and higher openings to pull the hot air out.

For the roofs of the building, they are divided into halves. The lower sections of the sloped roofs are made into green roofs to blend into the existing site where there is a two meter height difference with the park. While the other halves are dug in to create slots for solar panel, which help generate a small percentage of energy for the site. Since the roofs are only 11 degrees, solar panels are propped up to be 35 degrees, facing south, for moderate efficiency without the panels overshadowing each other.


The main materials used in the design are the variety of woods. The building itself is made of black wood in contrast with lighter color to create interesting impact. The black wood is “Shou-Sugi-Ban” or charred wood in English. It is a Japanese method of processing wood by using torch fire to char the wood exterior. Pine wood is selected for this as it is easy to find and a local material found in Scotland. This process is beneficial in various ways, including: more moisture resistant, protects wood from insects, and long-lasting. Some say charred wood can last up to a hundred years. Moreover, the dark colour of the wood also provide heat absorption, which helps keeping the building warm in winter.

As can be seen in previous images, the design landscape design is inspired by the hexagonal shape of honeycomb. Different sizes are used in many purposes from the shape of storage sheds, isolated gardens, and many other details. The most prominent is wood bridges crossing over the pool. The varying heights is inspired by Giant’s Causeway in Northern Ireland. This allow different purposes for different height, where the flat one is floor paving, the mid-height is seating, and tallest is plant pot. The fourth purpose of the honeycomb is to create skylights, which can be found on top of production house, and in the public restroom connecting building west and centre sections. The fifth purpose is as a framed roof structure for ivy in the yard between the two building sections, providing shade while casting whimsical shadows. The last purpose is as hanging light fixtures that disperses from the ivy frame, found only in the summer cafe.
